£1,200 pcm

63-67 Kingston Road, New Malden

New Malden

Department:
Lettings
Reference No.:
10293
Postcode:
KT3 3PB
Type:
Studio
Availability:
Let
Bathrooms:
1
Receptions:
1
Deposit:
£1,384
Available Date:
2025-06-20

Property features

  • Studio apartment
  • En-suite shower room
  • Kitchen
  • Use of Laundry room
  • Part furnished
  • EPC rating B

Summary

BRIGHT STUDIO APARTMENT WITH SHOWER ROOM & SEPERATE KITCHEN JUST A SHORT STROLL NEW MALDEN HIGH STREET AND 10 MINUTES WALK TO THE TRAIN STATION.

Details

Located just a 10 minute walk from New Malden train station and everything the high street has to offer.

This lovely studio flat will be fully redecorated for the new tenant and provides a private shower room and kitchen.
Use of washing machine and tumble dryer in a shared laundry room with two other flats, of which the landlord pays the bills!

Bills are not included.
Council Tax Band B = £1,966.57 per annum.
EPC Rating = B.
Part-Furnished - Bed with mattress, wardrobe, sofa and table with chairs.

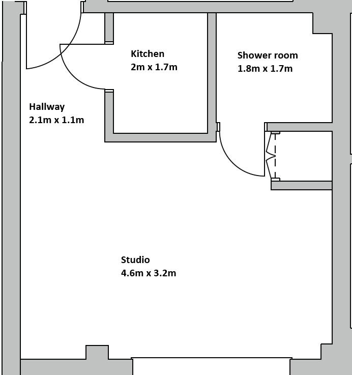
Floor Plans

EPC

Location

Property Enquiry

Reach out to us via the contact form below to request further details or arrange a viewing.