£1,300 pcm

Nutfield Road, Merstham

Redhill

Department:
Lettings
Reference No.:
10065
Postcode:
RH1 3EP
Type:
Apartment
Availability:
Let
Bedrooms:
1
Bathrooms:
1
Receptions:
1
Furnished:
Unfurnished
Deposit:
£1,500
Available Date:
2025-06-30

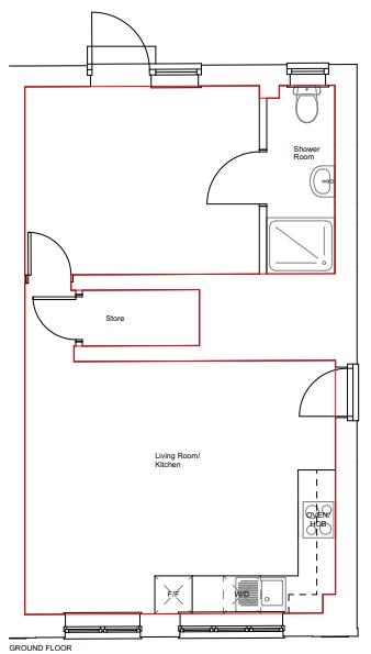
Property features

  • Ground floor
  • Private garden
  • New en-suite
  • New kitchen
  • New heating system
  • Storage cupboard
  • New windows

Summary

TOTALLY NEW ONE BEDROOM GROUND FLOOR APARTMENT WITH A PRIVATE GARDEN. JUST 10 MINTUES WALK TO MERSTHAM STATION.

Details

Fully managed by We Are Lettings and maintained by our in-house team we have to let this new one bedroom apartment with a private garden. Located just a 10 minute walk from Merstham train station.

Part of a parade of 15 converted and renovated 1 and 2 bedroom apartments - All available to privately let through We Are Lettings.

This is a ground floor flat with a private entrance.
New kitchen with new appliances.
Open-plan kitchen to living room.
New en-suite shower room.
One Double bedroom with access to the private garden.
Large storage cupboard with electric boiler.
Grey wood effect Luxury Vinyl Tile flooring throughout.
Gardens contain a small patio area and will be laid with lawn.

Council Tax Band C = £2,176.70 per annum.
Bills are not included.
Unfurnished.

Floor Plans

EPC

Location

Property Enquiry

Reach out to us via the contact form below to request further details or arrange a viewing.