£1,500 pcm

Nutfield Road, Merstham

Redhill

Department:
Lettings
Reference No.:
10068
Postcode:
RH1 3EP
Type:
Apartment
Availability:
Let
Bedrooms:
2
Bathrooms:
1
Receptions:
1
Furnished:
Unfurnished
Available Date:
2025-06-28

Property features

  • NEW KITCHEN
  • NEW BATHROOM
  • NEW CARPETS
  • NEW HEATING
  • PARKING
  • PRIVATE GARDEN
  • 2 DOUBLE BEDROOMS
  • NEW WINDOWS
  • GAS CENTRAL HEATING

Summary

RENOVATED 2 BEDROOM APARTMENT WITH PARKING AND PRIVATE GARDEN. JUST 10 MINTUES WALK TO MERSTHAM STATION.

Details

Fully managed by We Are Lettings and maintained by our in-house team we have to let this newly refurbished two double bedroom apartment with parking and a private garden. Located just a 10 minute walk from Merstham train station.

Part of a parade of 15 converted and renovated 1 and 2 bedroom apartments - All available to privately let through We Are Lettings and move in from mid-June.

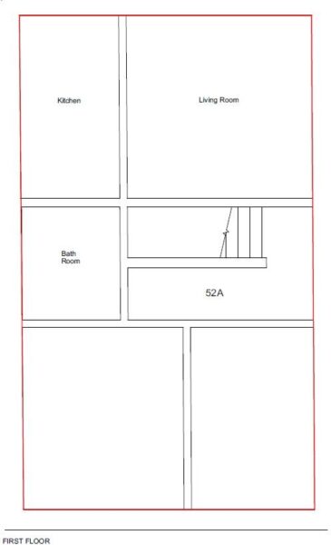
This is a first floor flat with a private entrance on the ground floor.
Parking is available for one vehicle.
The rear garden access is outside at the rear of the property. The garden will be predominantly grass.
New kitchen with new appliances.
New bathroom.
2 Double bedrooms.
Open-plan kitchen to living room.
New carpets are to be laid.

Council Tax Band C = £2,176.70 per annum.
EPC Rating = C.
Bills are not included.
Unfurnished.

Floor Plans

EPC

Location

Property Enquiry

Reach out to us via the contact form below to request further details or arrange a viewing.